

Texas A&M Center for Advanced Biomanufacturing and Sustainability (CABS)
The Texas A&M Center for Advanced Biomanufacturing and Sustainability (CABS) was established in 2024 to lead research and development in biomanufacturing. The Center brings together multidisciplinary expertise from across the university and beyond, focusing on innovation in:
- Metabolic and Macromolecular Engineering & Systems Biology
- Chemical Catalysis, Biocatalysis, and Electrochemical Engineering
- Microfluidics and High-Throughput Systems
- Computational Science, Artificial Intelligence, and Data Analytics
- Process Modeling, Optimization, Technoeconomic Analysis (TEA), and Life Cycle Assessment (LCA)
- Separation Processes for Biomanufacturing
- Renewable Feedstocks and the Circular Economy
CABS is supported by the Texas Governor’s University Research Initiative (GURI), with matching funds from the Chancellor’s Research Initiative (CRI).
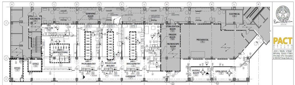
As part of this investment, approximately half of the 7th floor of the Jack E. Brown Chemical Engineering Building is being renovated to establish state-of-the-art biomanufacturing facilities. The buildout, designed in February 2025 and scheduled for completion in early 2026, will include laboratories for microbial strain engineering, biochemistry, microbiology, cell culture, as well as bioreactor systems and downstream recovery and purification suites.
Research Capabilities
Genetic Engineering & Molecular Biology
- Whole genome sequencing, assembly, and annotation (Oxford Nanopore MinION).
- DNA cloning and assembly (Gateway, Golden Gate, Gibson, TOPO, CRISPR-Cas9).
- Genome editing (CRISPR-Cas9, recombineering, site-directed mutagenesis).
- Plasmid construction and transformation into bacterial, yeast, or fungal hosts.
- Heterologous expression of proteins, enzymes, and metabolic pathways.
- Adaptive Laboratory Evolution (ALE) in batch or continuous fermenters.
- Equipment: thermal cyclers, electroporators, gel electrophoresis and imaging systems, Nanodrop/Qubit fluorometers, cryopreservation freezers (-20 °C and -80 °C), centrifuges, microbial incubators, bead baths, biosafety cabinets (BSL-1/2), and more.
- Access to TAMU Genomics and Bioinformatics Core Services.
Fermentation
- Stationary and shaking incubators.
- Autoclaves and sterilization systems.
- Media preparation facilities with balances, mixers, and sterile filtration.
- Bench-scale, fully automated fermenters (1–5 L) for batch, fed-batch, and continuous processes, equipped with online sensors for pH, temperature, dissolved oxygen, agitation, and off-gas analysis (O₂, CO₂).
- Cell culture incubators and bioreactors.
- Access to pilot-scale bioreactors (up to 150 L) and downstream equipment at the National Center for Therapeutics Manufacturing (NCTM).
Bioanalytical Methods
- Confocal and fluorescence microscopy.
- Spectrophotometers for enzyme assays.
- High-performance liquid chromatography (HPLC) for substrates and products.
- Access to TAMU’s Microscopy and Imaging Center, Materials Characterization Facility (MCF), and the Systems and Synthetic Biology Innovations Hub for high-throughput screening.
Downstream Processing
- Bench and continuous centrifuges for biomass separation.
- Microfiltration and ultrafiltration systems for broth clarification.
- Purification equipment including rotary evaporators, freeze dryers, and ion-exchange columns for early recovery trials.
CABS is laying the foundation for sustainable, cost-competitive, and scalable biomanufacturing. By uniting cutting-edge science with advanced infrastructure, Texas A&M is advancing the circular economy and positioning itself as a national leader in sustainable biotechnology innovation.
